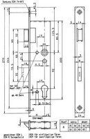
Variante: BKS Panikschloß stumpf Panikfunktion
Produktgruppe: Türverschlüsse und Einsteckschlösser
BKS
BKS
Ihr Suchergebnis besteht aus diesen 2 Artikeln (kann ähnliche Treffer enthalten)…
Ihr Suchergebnis besteht aus diesen 2 Artikeln (kann ähnliche Treffer enthalten)…