Nur für Gewerbetreibende

Wir haben vom 24.12. bis 02.01.2026 geschlossen - Shop-Bestellungen werden ab dem 05.01.2026 wieder bearbeitet.

Abbildung ähnlich
Hettich

Hettich Teilauszug Rollenführung FR 402-Set mit Stop Control - links/rechts - 25 kg - 350 mm

HET553-350 4023149032042 1058345
keine Lagerware
auf Anfrage
je 100 Ga
keine Verfügbarkeitsinformationen

Verpackungseinheiten

20 Ga

Verkaufsdaten

Mindestbestellmenge 1 Ga
Bestellschritt 1 Ga

Beschreibung

Eigenschaften:

  • Stop Control - integrierter Einzug für selbstständiges Schließen
  • Mit Doppel-Stopp und Ausrollsicherung
  • Mit einseitiger Zwangsführung
  • Automatischer Toleranzausgleich ± 1 mm
  • Belastbarkeit nach EN 15338, Level 1
  • Stahl pulverbeschichtet weiß

Merkmale

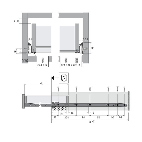
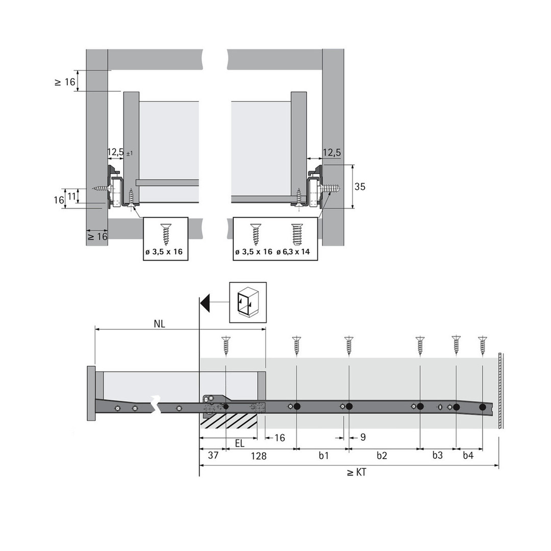
Mindestkorpustiefe KT 353 mm
Auszugsverlust EL 69 mm
Lochabstand b1 96 mm
Lochabstand b2 64 mm
Nennlänge 350 mm
Farbe weiß
Belastungsklasse 25 kg
Anschlagseite links und rechts
Komforteigenschaften Stop Control
Führungsart Sichtbare Führung
Auszugsart Teilauszug
Komponenten Auszugsführungen
WhatsApp
Mail
Anrufen