Nur für Gewerbetreibende

Abbildung ähnlich
Menke

Menke Kammerprofil - 15mm - mit Nase - mit Schaumklebeband - 17x15mm - Gale Grey Finesse [77]

4055032059119 078271K49122
auf Anfrage
je 1 m
keine Verfügbarkeitsinformationen

Verpackungseinheiten

1 m
60 m

Verkaufsdaten

Mindestbestellmenge 1 m
Bestellschritt 1 m

Beschreibung

Suchst du ein bestimmtes Dekor für dein Profil?

Alle Dekore findest du im Menke Dekorfinder

Merkmale

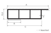
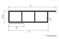
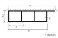
Querschnittmaß 17x15 mm
Farbe Kammerleiste Gale Grey Finesse [77]
Nase Ja
Schaumklebeband Ja
Profilform rechteckig
Länge Kammerleiste 6000 mm
WhatsApp
Mail
Anrufen