Nur für Gewerbetreibende

Wir haben vom 24.12. bis 02.01.2026 geschlossen - Shop-Bestellungen werden ab dem 05.01.2026 wieder bearbeitet.

Abbildung ähnlich
Menke

Menke Kammerprofil - 15mm - mit Nase - mit Schaumklebeband - 30x15mm - Weiß 9016

KUN005-04 078272
auf Anfrage
je 1 m
keine Verfügbarkeitsinformationen

Verpackungseinheiten

60 m

Verkaufsdaten

Mindestbestellmenge 60 m
Bestellschritt 60 m

Beschreibung

Suchst du ein bestimmtes Dekor für dein Profil?

Alle Dekore findest du im Menke Dekorfinder

Merkmale

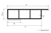
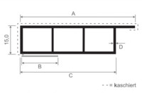
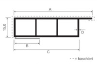
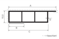
Querschnittmaß 30x15 mm
Farbe Kammerleiste Weiß 9016
Nase Ja
Schaumklebeband Ja
Profilform rechteckig
Länge Kammerleiste 6000 mm
WhatsApp
Mail
Anrufen